MẪU NHÀ CẤP 4 ĐẸP
Xây dựng một mẫu nhà cấp 4 đẹp là ưu tiên của nhiều gia đình Việt hiện nay. Loại hình nhà ở này mang lại không gian sống thoải mái và ấm cúng.
Chi phí đầu tư cho nhà cấp 4 thường thấp hơn so với nhà cao tầng.
Thời gian thi công nhanh chóng giúp gia chủ sớm ổn định cuộc sống mới.
NỘI DUNG BÀI VIẾT
- 1 Tầm Quan Trọng Của Việc Lựa Chọn Mẫu Nhà Cấp 4 Đẹp Và Phù Hợp
- 2 Xu Hướng Thiết Kế Nhà Cấp 4 Đẹp Được Ưa Chuộng Hiện Nay
- 3 Sự Kết Hợp Màu Sắc Hoàn Hảo Cho Mẫu Nhà Cấp 4 Đẹp
- 4 Cách Lựa Chọn Cửa Chính Cho Một Mẫu Nhà Cấp 4 Và Sang Trọng
- 5 Xu Hướng Lựa Chọn Mẫu Nhà Cấp 4 Đẹp Kết Hợp Sân Vườn Xanh Mát
- 6 Khơi Thông Tài Lộc Với Phong Thủy Nhà Cấp 4 Hiện Đại
- 7 Đột Phá Với Kiến Trúc Mẫu Nhà Cấp 4 Đẹp Sử Hệ Cửa Chớp Gỗ
- 8 Những Lưu Ý Khi Xây Dựng Mẫu Nhà Cấp 4 Đẹp Dạng Nhà Ống
- 9 Khám Phá Mẫu Nhà Cấp 4 Đẹp Có Gác Lửng Diện Tích 5x20m-30m
- 10 Kiến Trúc Mẫu Nhà Cấp 4 Đẹp Có Gác Lửng Sang Trọng
- 11 Phong Thủy Nhà Cấp 4 (5x20m): Bí Quyết Kích Hoạt Tài Vận Thịnh Vượng
- 12 Phân Tích Kiến Trúc Mặt Tiền Mẫu Nhà Cấp 4 Đẹp Phong Cách Hiện Đại
Tầm Quan Trọng Của Việc Lựa Chọn Mẫu Nhà Cấp 4 Đẹp Và Phù Hợp
Một thiết kế tốt giúp tối ưu hóa diện tích sử dụng cho cả gia đình. Không gian nội thất cần được bố trí khoa học và đảm bảo phong thủy. Ánh sáng tự nhiên và gió trời là yếu tố then chốt trong thiết kế. Mẫu nhà cấp 4 đẹp cần thể hiện được phong cách riêng của chủ nhân. Bạn có thể chọn phong cách hiện đại hoặc tân cổ điển tùy sở thích.
Phối cảnh mẫu nhà cấp 4 phong cách hiện đại với hệ mái Nhật xanh sang trọng.
Đặc Điểm Nổi Bật Của Các Mẫu Nhà Cấp 4 Đẹp Hệ Mái Nhật
Mái Nhật giúp ngôi nhà trông cao ráo và thanh thoát hơn rất nhiều. Khả năng chống nóng và thoát nước mưa của hệ mái này rất tuyệt vời. Màu sắc mái Nhật hiện nay rất đa dạng cho khách hàng lựa chọn. Sự kết hợp giữa tường trắng và mái xanh tạo nên vẻ đẹp bền vững. Các chi tiết trang trí ngoại thất nên được tối giản để giữ độ tinh tế.
Phân Tích Mặt Bằng Công Năng Chi Tiết Cho Mẫu Nhà Cấp 4
Việc phân chia phòng ốc ảnh hưởng trực tiếp đến sinh hoạt hàng ngày. Phòng khách thường được đặt ở vị trí trung tâm của ngôi nhà. Khu vực thờ cúng cần sự yên tĩnh và trang nghiêm tuyệt đối. Phòng bếp và phòng ăn nên thiết kế liền kề để tiết kiệm diện tích. Cửa sổ lớn giúp không gian bên trong luôn thông thoáng và dễ chịu.
Bản vẽ mặt bằng công năng mẫu nhà cấp 4 có sân vườn rộng thoáng đãng.
Cách Bố Trí Không Gian Sân Vườn Cho Mẫu Nhà Cấp 4 Đẹp
Sân vườn xanh mát giúp cải thiện chất lượng không khí quanh nhà bạn. Bạn có thể trồng thêm cây cảnh hoặc rau sạch tại khu vực này. Khoảng sân rộng cũng là nơi vui chơi lý tưởng cho trẻ nhỏ. Tiểu cảnh nước sẽ mang lại cảm giác thư thái sau giờ làm việc. Một mẫu nhà cấp 4 luôn cần sự hài hòa với thiên nhiên.
Phối cảnh mặt tiền nhà cấp 4 mái Nhật sang trọng lung linh trong đêm.
Góc nhìn nghiêng sân vườn và lối đi bên hông nhà cấp 4 hiện đại.
>>Xem ngay: Nhận ngay báo giá thiết kế nhà chuẩn xác giúp bạn chủ động tài chính khi xây dựng
Xu Hướng Thiết Kế Nhà Cấp 4 Đẹp Được Ưa Chuộng Hiện Nay
Người trẻ thường yêu thích các đường nét kiến trúc vuông vức và khỏe khoắn. Vật liệu hiện đại như kính và đá trang trí được sử dụng phổ biến. Gam màu trung tính giúp ngôi nhà trông sang trọng và không lỗi mốt. Hệ thống đèn LED âm trần tạo điểm nhấn lung linh vào buổi tối. Đây là lựa chọn hoàn hảo cho những ai yêu sự đơn giản.
Thiết kế mẫu nhà cấp 4 đẹp tân cổ điển với đường phào chỉ cực kỳ tinh xảo.
Tối Ưu Chi Phí Xây Dựng Cho Mẫu Nhà Cấp 4 Đẹp Ở Nông Thôn
Bạn nên lập kế hoạch tài chính rõ ràng trước khi bắt đầu xây. Việc lựa chọn nhà thầu uy tín giúp tránh phát sinh chi phí thừa. Tận dụng nguyên vật liệu địa phương là cách tiết kiệm thông minh nhất. Hãy giám sát chặt chẽ quá trình thi công để đảm bảo chất lượng. Một mẫu nhà cấp 4 không nhất thiết phải quá tốn kém.
Sơ đồ bố trí nội thất mẫu nhà cấp 4 có 4 phòng ngủ tiện nghi.
Mặt tiền nhà cấp 4 phong cách tân cổ điển với hệ cột vững chãi.
Sự Kết Hợp Màu Sắc Hoàn Hảo Cho Mẫu Nhà Cấp 4 Đẹp
Màu sơn ngoại thất cần có sự đồng nhất với tổng thể kiến trúc. Trắng và xám là hai màu sắc dễ phối hợp với nhau nhất. Bạn có thể tạo điểm nhấn bằng các mảng tường ốp gạch trang trí. Màu gỗ tự nhiên mang lại cảm giác ấm áp cho không gian sống. Ánh sáng vàng nhẹ giúp ngôi nhà trở nên lung linh hơn rất nhiều.
Vai Trò Của Ánh Sáng Tự Nhiên Trong Mẫu Nhà Cấp 4 Đẹp
Cửa kính lớn là giải pháp tối ưu để lấy sáng cho nhà nhỏ. Ánh nắng mặt trời giúp tiêu diệt vi khuẩn và nấm mốc có hại. Không gian sáng sủa giúp tinh thần các thành viên luôn thoải mái hơn. Bạn có thể sử dụng thêm rèm cửa để điều chỉnh độ sáng. Thiết kế giếng trời cũng là một ý tưởng rất hay cho nhà ống.
Kiến trúc mẫu nhà cấp 4 với hệ mái chồng mái vô cùng ấn tượng.
Tiêu Chuẩn Lựa Chọn Vật Liệu Xây Mẫu Nhà Cấp 4 Bền Bỉ
Gạch xây dựng cần có độ chịu lực cao và chống thấm tốt. Hệ khung mái bằng thép nhẹ đang là xu hướng mới hiện nay. Sơn nước chất lượng giúp bảo vệ tường nhà dưới tác động thời tiết. Cửa nhôm xingfa có độ bền cao và cách âm rất hiệu quả. Hãy chọn những thương hiệu uy tín để an tâm khi sử dụng lâu dài.
Phân Tích Chi Tiết Sơ Đồ Bố Trí Mẫu Nhà Cấp 4 Đẹp Có Nhiều Phòng Ngủ
Việc sắp xếp các phòng ngủ cần sự riêng tư và yên tĩnh. Đối với gia đình đông người, mẫu 3 hoặc 4 phòng ngủ là lựa chọn tốt. Hành lang giao thông trong nhà nên thiết kế rộng rãi và thoáng. Các phòng ngủ nên có cửa sổ để lấy ánh sáng tự nhiên. Một mẫu nhà cấp 4 luôn ưu tiên sự thoải mái cho người già. Trẻ nhỏ cũng cần không gian học tập và vui chơi riêng biệt.
Bản vẽ kỹ thuật mẫu nhà cấp 4 bố trí 3 phòng ngủ tiện dụng.
Những Lưu Ý Quan Trọng Khi Thiết Kế Mẫu Nhà Cấp 4 Hệ Mái Nhật
Mái Nhật có độ dốc vừa phải giúp thoát nước nhanh chóng. Kiểu mái này mang lại vẻ đẹp thanh lịch và rất hiện đại. Sự kết hợp giữa mái xanh và tường trắng luôn tạo ấn tượng. Bạn có thể sử dụng ngói màu cao cấp để tăng độ bền. Mẫu nhà cấp 4 đẹp mái Nhật phù hợp với cả thành thị và nông thôn. Chi phí thi công mái Nhật thường khá hợp lý cho gia chủ.
>>Xem ngay: Tham khảo ngay báo giá thiết kế nhà để đưa ra lựa chọn chính xác và nhanh chóng
Cách Lựa Chọn Cửa Chính Cho Một Mẫu Nhà Cấp 4 Và Sang Trọng
Cửa gỗ mang lại sự bề thế và đẳng cấp cho ngôi nhà. Tuy nhiên, cửa nhôm kính lại giúp không gian trông rộng mở hơn. Bạn nên chọn loại kính cường lực để đảm bảo an toàn tuyệt đối. Màu sắc khung cửa cần hài hòa với màu sơn ngoại thất. Mẫu nhà cấp 4 đẹp sẽ nổi bật hơn nhờ bộ cửa chính ấn tượng. Hệ thống khóa thông minh cũng là một lựa chọn đáng cân nhắc.
Bản vẽ kỹ thuật mẫu nhà cấp 4 bố trí 3 phòng ngủ tiện dụng.
Những Lưu Ý Quan Trọng Khi Thiết Kế Mẫu Nhà Cấp 4 Hệ Mái Nhật
Mái Nhật có độ dốc vừa phải giúp thoát nước nhanh chóng. Kiểu mái này mang lại vẻ đẹp thanh lịch và rất hiện đại. Sự kết hợp giữa mái xanh và tường trắng luôn tạo ấn tượng. Bạn có thể sử dụng ngói màu cao cấp để tăng độ bền. Mẫu nhà cấp 4 mái Nhật phù hợp với cả thành thị và nông thôn. Chi phí thi công mái Nhật thường khá hợp lý cho gia chủ.
Cách Lựa Chọn Cửa Chính Cho Một Mẫu Nhà Cấp 4 Đẹp Và Sang Trọng
Cửa gỗ mang lại sự bề thế và đẳng cấp cho ngôi nhà. Tuy nhiên, cửa nhôm kính lại giúp không gian trông rộng mở hơn. Bạn nên chọn loại kính cường lực để đảm bảo an toàn tuyệt đối. Màu sắc khung cửa cần hài hòa với màu sơn ngoại thất. Mẫu nhà cấp 4 sẽ nổi bật hơn nhờ bộ cửa chính ấn tượng. Hệ thống khóa thông minh cũng là một lựa chọn đáng cân nhắc.
Sơ đồ phân chia khu vực mẫu nhà cấp 4 diện tích vuông vức.
Nhà cấp 4 mái Nhật trắng tinh khôi nổi bật với ánh đèn vàng ấm.
Góc nhìn khác của ngôi nhà mái Nhật có sân vườn xanh mát bao quanh.t.
Tầm Quan Trọng Của Hệ Thống Cây Xanh Trong Mẫu Nhà Cấp 4 Đẹp
Cây xanh giúp giảm bức xạ nhiệt vào những ngày nắng nóng. Bạn có thể thiết kế bồn hoa chạy dọc theo chân tường. Cây dây leo trên hàng rào tạo vẻ đẹp mềm mại tự nhiên. Không gian xanh giúp giảm căng thẳng sau một ngày mệt mỏi. Mẫu nhà cấp 4 đẹp gắn liền với thiên nhiên luôn dẫn đầu xu hướng. Hãy chọn những loại cây dễ chăm sóc và ít rụng lá.
Lựa Chọn Gạch Lát Nền Phù Hợp Cho Mẫu Nhà Cấp 4 Hiện Nay
Gạch men mờ giúp sàn nhà trông sang trọng và sạch sẽ hơn. Đối với phòng khách, gạch vân đá là sự lựa chọn tuyệt vời. Phòng tắm nên dùng gạch có độ nhám cao để chống trơn trượt. Kích thước gạch cần tương xứng với diện tích của từng phòng. Một mẫu nhà cấp 4 hoàn hảo từ những chi tiết nhỏ nhất. Màu gạch sàn nên tối hơn màu tường một tông nhẹ.
Phối cảnh mẫu nhà cấp 4 đẹp phối màu xám trắng cực kỳ hiện đại.
Những Sai Lầm Cần Tránh Khi Xây Dựng Mẫu Nhà Cấp 4 Cho Gia Đình
Đừng quá tham lam các chi tiết trang trí rườm rà, cầu kỳ. Việc thiếu ánh sáng sẽ làm ngôi nhà trở nên u tối, chật hẹp. Không nên thay đổi bản vẽ thiết kế quá nhiều khi thi công. Hãy tính toán kỹ ngân sách để tránh tình trạng nợ nần. Một mẫu nhà cấp 4 đẹp cần có kế hoạch chuẩn bị chu đáo. Việc chọn sai vật liệu kém chất lượng sẽ gây tốn kém sau này.
Tại Sao Nên Thuê Đơn Vị Tư Vấn Thiết Kế Mẫu Nhà Cấp 4 Chuyên Nghiệp
Kiến trúc sư giúp bạn hiện thực hóa ý tưởng một cách khoa học. Họ có kinh nghiệm trong việc xử lý các lỗi về cấu trúc. Hồ sơ thiết kế đầy đủ giúp thợ thi công dễ dàng hơn. Bạn sẽ biết trước được chi phí xây dựng dự kiến của mình. Một mẫu nhà cấp 4 đẹp xứng đáng để bạn đầu tư chất xám. Sự tư vấn chuyên nghiệp giúp ngôi nhà bền đẹp theo thời gian.
Bản vẽ mặt bằng tổng thể mẫu nhà cấp 4 có phòng thờ riêng.
Mẫu nhà cấp 4 mái Thái đơn giản phối màu xanh xám và trắng thanh lịch.
Xu Hướng Lựa Chọn Mẫu Nhà Cấp 4 Đẹp Kết Hợp Sân Vườn Xanh Mát
Thiết kế nhà ở gắn liền với thiên nhiên đang trở thành xu hướng dẫn đầu hiện nay. Không gian xanh giúp điều hòa không khí và mang lại sự thư thái cho gia đình bạn. Những khóm hoa rực rỡ trước hiên nhà tạo nên điểm nhấn thẩm mỹ vô cùng cuốn hút. Hệ mái dốc màu xanh thẫm giúp ngôi nhà trông kiên cố và cực kỳ bề thế. Mẫu nhà cấp 4 đẹp này là lựa chọn hoàn hảo cho những khu đất rộng rãi. Mọi chi tiết kiến trúc đều hướng tới sự hài hòa và tinh tế nhất có thể.
Phối cảnh mẫu nhà cấp 4 rực rỡ với vườn hoa đa sắc màu phía trước nhà.
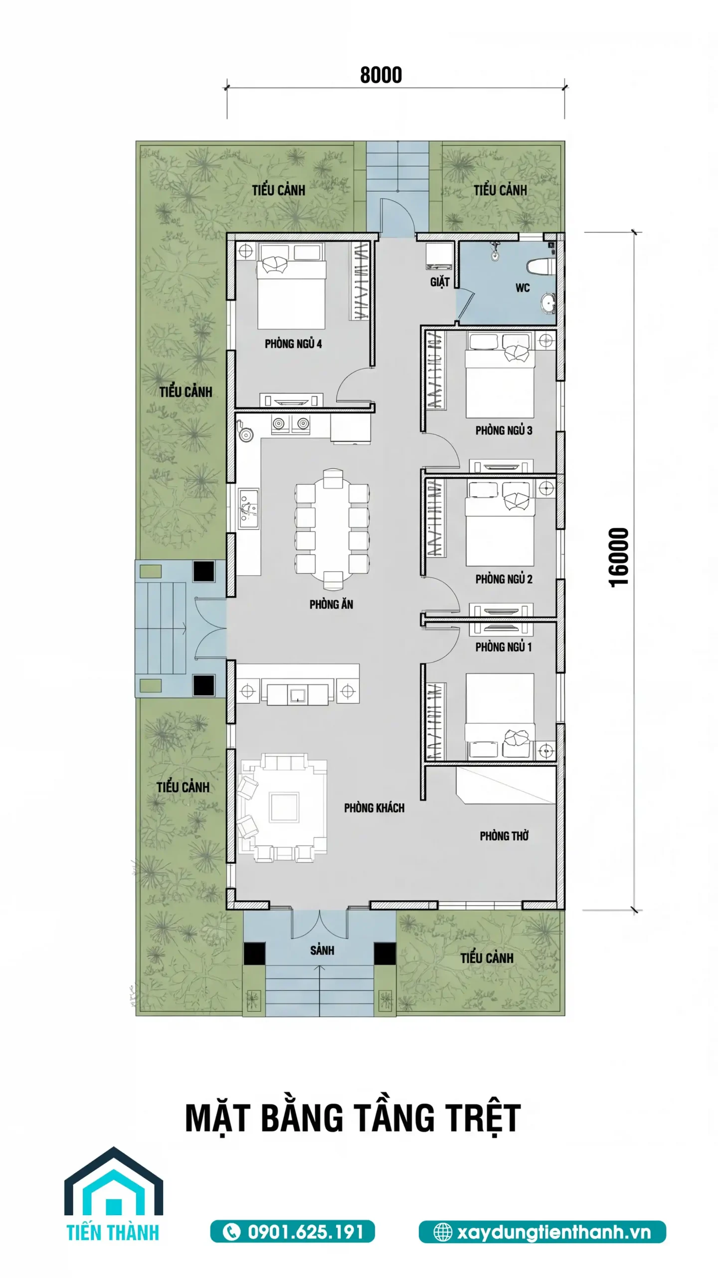
Phân Tích Bản Vẽ Mặt Bằng Mẫu Nhà Cấp 4 Đẹp Có Bốn Phòng Ngủ
Với diện tích sàn rộng, việc bố trí bốn phòng ngủ đòi hỏi sự tính toán kỹ lưỡng. Khu vực phòng khách và phòng thờ được đặt ở vị trí trang trọng nhất của nhà. Phòng bếp nối liền sảnh phụ giúp không gian nấu nướng luôn thoáng đãng và sạch sẽ. Mẫu nhà cấp 4 này đảm bảo không gian sống riêng tư cho mọi thành viên. Các phòng ngủ đều có cửa sổ lớn để đón ánh sáng tự nhiên và gió trời. Sơ đồ này cực kỳ phù hợp cho những gia đình có nhiều thế hệ chung sống.
Bản vẽ chi tiết mẫu nhà cấp 4 diện tích 8x16m với bốn phòng ngủ tiện nghi.
Khơi Thông Tài Lộc Với Phong Thủy Nhà Cấp 4 Hiện Đại
Để biến ngôi nhà cấp 4 thành không gian sống lý tưởng và thu hút tài lộc, việc ứng dụng phong thủy khoa học là điều không thể bỏ qua. Dựa trên sơ đồ tối ưu từ hình ảnh, gia chủ cần nắm vững các nguyên tắc cốt lõi sau:
Sơ đồ chi tiết bố trí công năng và phong thủy nhà cấp 4 giúp gia chủ phát tài.
Phòng khách và Bếp:
Phòng khách đặt ở trung tâm, gần cửa chính (Minh Đường) giúp đón cát khí dồi dào. Khu vực bếp nấu tuân thủ chặt chẽ nguyên tắc “Tọa hung hướng cát” và tuyệt đối không đối diện cửa chính hay nhà vệ sinh nhằm bảo toàn tài khí, tránh hao tài tốn của.
Không gian nghỉ ngơi:
Phòng ngủ cần đặt tại cung tốt để đảm bảo sự tĩnh tại. Hãy tránh đặt giường dưới xà ngang hoặc đối diện cửa ra vào để bảo vệ sức khỏe và giữ tinh thần minh mẫn cho gia chủ.
Lưu thông sinh khí:
Hệ thống giếng trời và sân vườn giúp đối lưu không khí và cân bằng Mộc khí. Một ngôi nhà thông thoáng chính là chìa khóa để dòng chảy tài lộc luôn vận động và hưng vượng.
Đột Phá Với Kiến Trúc Mẫu Nhà Cấp 4 Đẹp Sử Hệ Cửa Chớp Gỗ
Kiến trúc hiện đại luôn ưu tiên những vật liệu có tính ứng dụng và thẩm mỹ cao. Hệ cửa chớp gỗ không chỉ che nắng mà còn giúp thông gió cực kỳ hiệu quả. Những ô cửa sổ tròn tạo nét mềm mại cho tổng thể khối kiến trúc vuông vức. Gam màu ghi xám giúp ngôi nhà trở nên sang trọng và không bao giờ lỗi mốt. Đây là một nhà cấp 4 đẹp dành cho những chủ nhân yêu sự khác biệt. Sự kết hợp giữa gỗ và kính tạo nên vẻ đẹp vừa cổ điển vừa hiện đại.
Thiết kế mẫu nhà cấp 4 mặt tiền sử dụng hệ cửa chớp gỗ độc đáo.
Giải Pháp Tăng Diện Tích Cho Nhà Cấp 4 Đẹp Có Gác Lửng
Gác lửng là phương án tối ưu để tăng không gian sử dụng mà không tốn kém. Tầng trệt được tận dụng tối đa cho các khu vực sinh hoạt chung của gia đình. Phòng khách rộng rãi được thiết kế liên thông với khu vực bếp và bàn ăn. Cầu thang lên gác được bố trí gọn gàng để tránh làm hẹp không gian chính. Mẫu nhà cấp 4 đẹp dạng này đang rất được ưa chuộng tại các khu đô thị. Cách bố trí này giúp ngôi nhà luôn tràn đầy ánh sáng và sự thông thoáng.
Sơ đồ mặt bằng trệt nhà cấp 4 đẹp gác lửng phong cách hiện đại.
Thiết Kế Tầng Lửng Tiện Nghi Trong Các Mẫu Nhà Cấp 4 Đẹp
Tầng lửng thường được gia chủ bố trí làm phòng thờ hoặc phòng ngủ yên tĩnh. Khoảng thông tầng phía trước giúp phòng khách bên dưới luôn cao ráo và sang trọng. Hệ thống lan can kính giúp tầm nhìn luôn rộng mở và đảm bảo an toàn tuyệt đối. Khu vực vệ sinh trên gác được thiết kế kín đáo và đầy đủ tiện nghi. Mẫu nhà cấp 4 đẹp có gác lửng giúp bạn tiết kiệm chi phí xây dựng hiệu quả. Đây là không gian lý tưởng để nghỉ ngơi và làm việc mỗi ngày.
Bản vẽ mặt bằng lửng nhà cấp 4 đẹp có khoảng thông tầng thoáng đãng.
Hành lang bên hông nhà với cửa sổ tròn độc đáo và cây xanh trang trí.
>>Xem ngay: Dịch vụ xây dựng trọn gói cho ngôi nhà bền đẹp lại tiết kiệm
Những Lưu Ý Khi Xây Dựng Mẫu Nhà Cấp 4 Đẹp Dạng Nhà Ống
Nhà ống thường có đặc điểm là chiều ngang hẹp và chiều dài sâu hun hút. Bạn nên sử dụng cửa kính lớn để lấy sáng cho toàn bộ không gian bên trong. Màu sơn trắng chủ đạo giúp ngôi nhà trông rộng rãi và sạch sẽ hơn rất nhiều. Một mẫu nhà cấp 4 dạng ống cần chú ý đến hệ thống thoát nước mái. Việc bố trí sân trước và sân sau giúp đối lưu không khí cực kỳ tốt. Hãy chọn những đơn vị thi công uy tín để đảm bảo chất lượng công trình.
Phối cảnh mẫu nhà cấp 4 dạng nhà ống hiện đại cho diện tích hẹp.
Cách Bố Trí Nội Thất Thông Minh Cho Mẫu Nhà Cấp 4 Đẹp 23m
Với chiều dài 23m, bạn có thể thoải mái phân chia các khu vực chức năng riêng biệt. Sân trước rộng rãi là nơi đỗ xe và trồng cây xanh lý tưởng cho gia chủ. Khu vực sinh hoạt chung được đặt ở đầu nhà để thuận tiện cho việc tiếp khách. Các phòng ngủ được xếp liên tiếp phía sau để tạo sự yên tĩnh tối đa. Mẫu nhà cấp 4 đẹp dài rộng này mang lại cảm giác thoải mái như biệt thự vườn. Hệ thống giếng trời giữa nhà sẽ là giải pháp lấy sáng cực kỳ thông minh.
Mặt bằng mẫu nhà cấp 4 chiều dài 23m bố trí phòng ốc khoa học.
Không Gian Nghỉ Ngơi Lý Tưởng Tại Mẫu Nhà Cấp 4 Đẹp Hiện Đại
Phòng ngủ là nơi quan trọng nhất để phục hồi năng lượng sau ngày làm việc dài. Bạn nên sử dụng các tông màu trung tính để tạo cảm giác bình yên và ấm cúng. Hệ tủ quần áo âm tường là giải pháp lưu trữ đồ đạc gọn gàng nhất hiện nay. Cửa sổ nhỏ nhìn ra khoảng xanh giúp căn phòng luôn sinh động và tràn đầy sức sống. Một mẫu nhà cấp 4 đẹp hoàn hảo phải chăm chút cho từng giấc ngủ của gia chủ. Hãy đầu tư vào nội thất chất lượng để tận hưởng cuộc sống trọn vẹn.
Thiết kế mặt bằng tầng lửng nhà cấp 4 đẹp với phòng ngủ riêng tư.
Nhà phố gác lửng cấp 4 hiện đại hai tầng có ban công trồng hoa và cửa gỗ sang trọng.
Khám Phá Mẫu Nhà Cấp 4 Đẹp Có Gác Lửng Diện Tích 5x20m-30m
Thiết kế gác lửng giúp nhân đôi diện tích sử dụng trên cùng một mặt bằng xây dựng. Mẫu nhà này sở hữu vẻ ngoài hiện đại với hệ mái bằng cực kỳ năng động. Tông màu trắng chủ đạo giúp không gian trông rộng rãi và vô cùng thanh lịch. Tầng trệt được tận dụng làm phòng khách và bếp ăn liên thông rất thông thoáng. Đây là mẫu nhà cấp 4 đẹp tối ưu cho gia đình trẻ tại đô thị. Việc bố trí thêm giếng trời giúp ngôi nhà luôn ngập tràn ánh sáng tự nhiên.
Phối cảnh nhà cấp 4 đẹp gác lửng 5×20-30m phong cách hiện đại trẻ trung.
Chi Tiết Mặt Bằng Công Năng Tầng Trệt Của Mẫu Nhà Cấp 4 Đẹp
Sơ đồ tầng trệt tập trung vào không gian sinh hoạt chung rộng rãi và ấm cúng. Khu vực sân trước đủ rộng để bố trí thêm cây xanh hoặc nơi để xe. Phòng khách và phòng bếp được phân chia bởi cầu thang lên tầng lửng rất tinh tế. Một phòng ngủ kín đáo được đặt ở cuối nhà để đảm bảo sự riêng tư. Mẫu nhà cấp 4 đẹp này còn có sân sau giúp đối lưu gió rất hiệu quả. Mọi ngóc ngách trong nhà đều được tận dụng triệt để, tránh lãng phí diện tích.
Bản vẽ mặt bằng tầng trệt mẫu nhà cấp 4 đẹp diện tích 5×20-30m khoa học.
Cách Bố Trí Tầng Lửng Tiện Nghi Trong Mẫu Nhà Cấp 4 Đẹp
Phần gác lửng được thiết kế thêm hai phòng ngủ và một không gian thờ cúng. Khoảng thông tầng rộng lớn giúp nhìn xuống toàn bộ phòng khách bên dưới rất sang trọng. Hệ thống cửa sổ nhỏ giúp các phòng trên gác lửng luôn khô ráo và thoáng mát. Mẫu nhà cấp 4 có gác lửng là giải pháp tiết kiệm chi phí xây dựng. Không gian này phù hợp để làm nơi nghỉ ngơi yên tĩnh cho các thành viên. Việc sử dụng vật liệu nhẹ giúp giảm tải trọng tối đa cho công trình của bạn.
Sơ đồ mặt bằng tầng lửng nhà cấp 4 đẹp bố trí 2 phòng ngủ.
Kiến Trúc Mẫu Nhà Cấp 4 Đẹp Có Gác Lửng Sang Trọng
Nhà cấp 4 gác lửng mang lại vẻ đẹp cao ráo và giúp chống nóng cực kỳ hiệu quả. Phối cảnh ngoại thất sử dụng màu sơn trung tính kết hợp ốp đá trang trí cao cấp. Hệ trụ cột vững chãi tạo nên sự bề thế cho mặt tiền của ngôi nhà. Mẫu nhà cấp 4 đẹp luôn chiếm trọn cảm tình của các gia chủ Việt. Không gian gác lửng bên trong giúp tối ưu hóa công năng sử dụng một cách tuyệt vời. Đây là tổ ấm lý tưởng cho những ai yêu thích vẻ đẹp truyền thống hiện đại.
Phối cảnh nhà cấp 4 đẹp gác lửng sang trọng và bề thế.
Bản vẽ mặt bằng tầng trệt gồm phòng khách, bếp, một phòng ngủ và sân.
Sơ Đồ Phân Chia Mặt Bằng Tổng Thể Mẫu Nhà Cấp 4 Đẹp 10m
Với chiều dài 10m, việc bố trí cầu thang ở giữa giúp giao thông thuận tiện hơn. Phòng khách được thiết kế mở đón ánh sáng từ hệ cửa chính lớn ở mặt tiền. Khu vực bếp ăn gọn gàng được đặt phía sau để ngăn mùi lan sang các phòng. Mẫu nhà cấp 4 này ưu tiên sự thông thoáng và cảm giác thoải mái nhất. Một phòng vệ sinh chung được đặt vị trí trung tâm để dễ dàng sử dụng hàng ngày. Các bản vẽ kỹ thuật đi kèm giúp bạn hình dung rõ ràng về không gian sống.
Bản vẽ tầng lửng gồm phòng ngủ thứ hai, khu giặt và khoảng thông tầng.
Máy ép cọc thủy lực màu xanh đang thi công móng tại công trình nhà phố.
Mâm cúng động thổ đầy đủ lễ vật đặt trước khu đất chuẩn bị xây dựng.
Khu đất trống đã dọn dẹp chuẩn bị mặt bằng để thi công
Phong Thủy Nhà Cấp 4 (5x20m): Bí Quyết Kích Hoạt Tài Vận Thịnh Vượng
Mẫu nhà cấp 4 dạng ống diện tích 5x20m là lựa chọn phổ biến, nhưng để gia chủ phát tài, việc tối ưu phong thủy theo sơ đồ hình ảnh là yếu tố then chốt. Điểm cốt lõi nằm ở khả năng lưu thông luồng khí xuyên suốt từ cửa trước ra sau, giúp loại bỏ tà khí và đón nhận năng lượng tươi mới.
Thiết kế nhà ống thông thoáng, tọa cát hướng cát, rước tài lộc và vượng khí vào nhà.
Phòng thờ:
Được đặt trang trọng tại gian đầu, vị trí “tọa cát hướng cát” nhìn ra cửa chính, đóng vai trò như thỏi nam châm thu hút vượng khí cho cả gia đình.
Bếp – Kho tài lộc:
Tuân thủ nghiêm ngặt nguyên tắc “tọa hung hướng cát”. Việc đặt bếp ở cung xấu nhưng nhìn về hướng tốt giúp thiêu rụi điềm rủi và bảo vệ tài sản.
Không gian nghỉ ngơi:
Phòng ngủ đặt tại cung tốt giúp gia chủ an giác, tinh thần vững vàng để đưa ra những quyết định kinh doanh sáng suốt.
Sự kết hợp hài hòa giữa ánh sáng tự nhiên và cách bố trí toilet tại góc khuất (tọa hung) giúp trấn áp khí xấu, tạo nên một không gian sống không chỉ đẹp mà còn là nền tảng cho sự nghiệp hanh thông và tài lộc dồi dào.
Phân Tích Kiến Trúc Mặt Tiền Mẫu Nhà Cấp 4 Đẹp Phong Cách Hiện Đại
Mẫu thiết kế này gây ấn tượng mạnh bởi những đường nét hình khối vuông vức và khỏe khoắn. Toàn bộ mặt tiền ngôi nhà được tối giản các chi tiết trang trí rườm rà, cầu kỳ. Hệ mái dốc lệch tầng tạo nên cái nhìn độc đáo và vô cùng mới mẻ cho công trình. Sự kết hợp giữa các tông màu trung tính mang lại vẻ đẹp sang trọng và bền vững. Đây là mẫu nhà cấp 4 đẹp lý tưởng dành cho những gia chủ yêu sự đơn giản. Khoảng sân trước rộng rãi giúp ngôi nhà luôn có sự thông thoáng và đón gió tốt nhất.
Phối cảnh 3D mẫu nhà cấp 4 phong cách hiện đại với thiết kế mái độc đáo.
Cách Bố Trí Mặt Bằng Công Năng Mẫu Nhà Cấp 4 Đẹp Chuẩn Khoa Học
Bản vẽ mặt bằng thể hiện sự phân chia các khu vực chức năng rất mạch lạc và tiện dụng. Phòng khách được đặt ngay vị trí sảnh chính để tối ưu hóa không gian tiếp đón khách. Khu vực bếp và bàn ăn được thiết kế mở giúp diện tích sinh hoạt chung trở nên rộng. Mẫu nhà cấp 4 đẹp này sở hữu hệ thống các phòng ngủ được đặt liền kề nhau ấm cúng. Mọi phòng chức năng đều có cửa sổ lớn hướng ra ngoài để lấy ánh sáng tự nhiên tuyệt vời. Sơ đồ này giúp việc di chuyển giữa các không gian trong nhà trở nên vô cùng thuận tiện.
Bản vẽ chi tiết mặt bằng công năng mẫu nhà cấp 4 hiện đại diện tích 5x20m.
Chi Tiết Kỹ Thuật Và Mặt Cắt Cấu Tạo Mẫu Nhà Cấp 4 Bền Vững
Hồ sơ kỹ thuật đầy đủ là yếu tố then chốt giúp đảm bảo chất lượng cho toàn công trình. Bản vẽ mặt cắt thể hiện rõ ràng độ cao tầng và cấu tạo chi tiết của hệ mái. Các thông số kỹ thuật được tính toán tỉ mỉ để phù hợp với điều kiện khí hậu Việt Nam. Mẫu nhà cấp 4 đẹp hiện đại cần có sự đồng bộ giữa kiến trúc và kết cấu chịu lực. Việc sử dụng vật liệu xây dựng mới giúp tăng khả năng cách âm và cách nhiệt cực tốt. Một bản thiết kế chuẩn sẽ giúp gia chủ tiết kiệm tối đa thời gian và chi phí thi công.
Hồ sơ bản vẽ mặt cắt kỹ thuật mẫu nhà cấp 4 đẹp hiện đại cực kỳ
Những cột bê tông cốt thép đầu tiên được dựng lên trên nền móng gạch đỏ.
Công nhân đang tích cực xây tường gạch bao quanh các cột bê tông của ngôi nhà.
Ngôi nhà dần hình thành phần thô với tường gạch và hệ thống xà gồ mái.
Không gian nội thất hiện đại với cửa kính lớn đón ánh sáng tự nhiên vào nhà.
Mặt tiền nhà cấp bốn hoàn thiện với thiết kế tối giản, tông màu trắng xám.
>>Xem ngay: Khám phá xây dựng trọn gói cho ngôi nhà chất lượng nhất giá lại rẻ
Việc Xây Dựng Và Sở Hữu Nhà Cấp 4 Đẹp
Sở hữu một mẫu nhà cấp 4 đẹp là niềm mơ ước của nhiều người. Đây không chỉ là nơi che mưa nắng mà là tổ ấm. Hãy chú trọng vào chất lượng thi công và vật liệu xây dựng. Không gian sống tốt giúp nâng cao chất lượng cuộc sống mỗi ngày. Chúc bạn sớm tìm được ý tưởng thiết kế ưng ý cho mình. Một căn nhà đẹp sẽ là nền tảng cho sự thành công.
Liên hệ với chúng tôi để tư vấn miễn phí
Công ty TNHH cơ khí Xây Dựng Tiến Thành
- Hotline: 0901.625.191
- Email: xaydungtienthanh01@gmail.com
- Website: xaydungtienthanh.vn
- Địa chỉ :72 Đường số 11-KDC Cityland Park Hills -P.Gò Vấp-TP.HCM













































