Trong xu hướng kiến trúc hiện đại, bản vẽ nhà cấp 4 mái nhật 4 phòng ngủ. Đang trở thành lựa chọn hàng đầu của nhiều gia đình Việt. Không chỉ mang lại vẻ đẹp thanh lịch, sang trọng từ phong cách kiến trúc xứ sở hoa anh đào. Mẫu nhà này còn tối ưu hóa không gian sống, tạo sự gắn kết giữa các thành viên. Nếu bạn đang sở hữu một quỹ đất rộng và mong muốn một không gian sống tiện nghi, đẳng cấp trên một mặt sàn. Đừng bỏ qua bài phân tích về mẫu nhà cấp 4 đẹp chi tiết dưới đây.
Nội Dung Bài Viết
- 1 1.Tại sao bản vẽ nhà cấp 4 mái nhật 4 phòng ngủ lại “lên ngôi”?
- 2 2.Chi tiết bản vẽ mặt bằng nhà cấp 4 mái nhật 4 phòng ngủ 8x16m
- 3 3.Phối cảnh ngoại thất bản vẽ nhà cấp 4 mái nhật 4 phòng ngủ
- 4 4.Hệ thống mái Nhật và giải pháp thoát nước với bản vẽ nhà cấp 4 mái nhật 4 phòng ngủ
- 5 5.Vẻ đẹp lung linh của mẫu nhà khi về đêm
- 6 6.Phân tích phối cảnh mặt hông và giải pháp không gian mở
- 7 7.Yếu tố kỹ thuật và kết cấu trong bản vẽ nhà cấp 4 mái nhật
- 8 8.Bố trí nội thất cho bản vẽ nhà cấp 4 mái nhật 4 phòng ngủ
- 9 9.Những lưu ý phong thủy khi thiết kế nhà cấp 4 mái nhật 4 phòng ngủ
1.Tại sao bản vẽ nhà cấp 4 mái nhật 4 phòng ngủ lại “lên ngôi”?
Sự kết hợp giữa mái Nhật và công năng 4 phòng ngủ không phải ngẫu nhiên mà được ưa chuộng. Đây là kết quả của sự tính toán kỹ lưỡng về cả thẩm mỹ lẫn phong thủy và nhu cầu thực tế.
Thẩm mỹ sang trọng, vượt thời gian
Mái Nhật (hay còn gọi là mái lùn) có độ dốc nhẹ, mở rộng ra các hướng khác nhau. Khác với mái Thái có độ dốc lớn, mái Nhật tạo cảm giác cân đối, thanh thoát và gần gũi với thiên nhiên. Khi áp dụng vào bản vẽ nhà cấp 4 mái nhật 4 phòng ngủ, ngôi nhà trông bề thế như một căn biệt thự vườn mini.
Phù hợp với khí hậu Việt Nam
Hệ mái Nhật có khả năng thoát nước tốt, chống nóng hiệu quả vào mùa hè và giữ ấm vào mùa đông. Với kết cấu lớp ngói chồng lớp, ngôi nhà luôn giữ được sự thông thoáng. Đặc biệt phù hợp với những vùng khí hậu nhiệt đới ẩm.
Tối ưu hóa công năng trên một mặt sàn
Việc bố trí 4 phòng ngủ trên cùng một mặt sàn giúp việc di chuyển, sinh hoạt của người già và trẻ nhỏ trở nên an toàn hơn. Nó xóa bỏ rào cản về cầu thang, tạo nên một không gian sống tập trung, ấm cúng. Nhưng vẫn đảm bảo tính riêng tư cho từng thành viên.
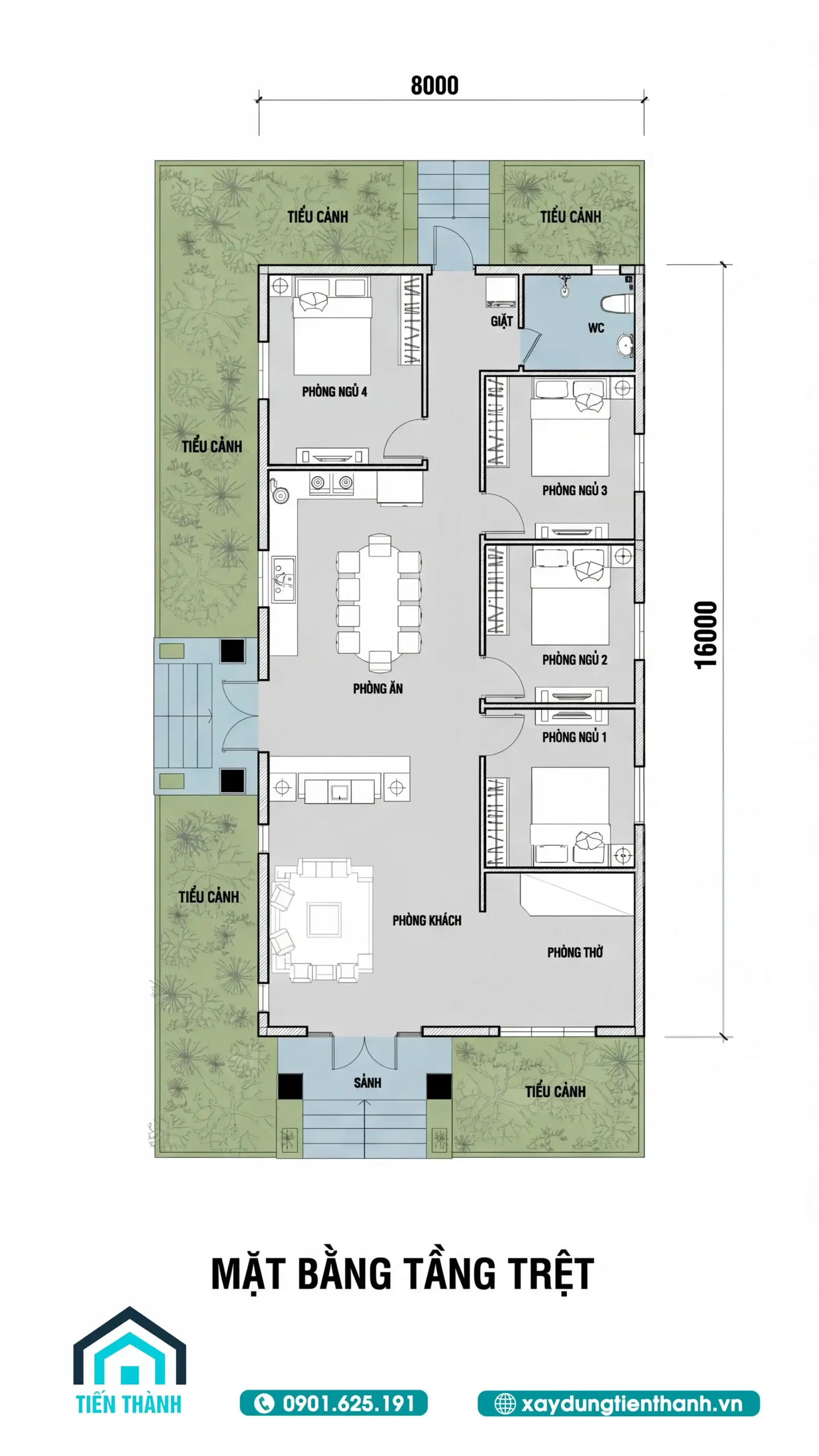
2.Chi tiết bản vẽ mặt bằng nhà cấp 4 mái nhật 4 phòng ngủ 8x16m
Để giúp bạn hình dung rõ hơn, chúng ta sẽ phân tích một mẫu nhà điển hình với kích thước mặt tiền 8m và chiều sâu 16m. Đây là kích thước lý tưởng để bố trí đầy đủ công năng mà không gây cảm giác chật chội.
Bản vẽ mặt bằng công năng chi tiết nhà cấp 4 mái nhật có 4 phòng ngủ tiện nghi.
Phân bổ không gian chức năng:
Dựa trên bản vẽ, chúng ta có thể thấy sự sắp xếp khoa học:
- Phòng khách: Nằm ngay sau sảnh chính, là không gian đón khách sang trọng và rộng rãi.
- Phòng thờ: Được đặt trang trọng bên cạnh phòng khách, hướng ra mặt tiền. Đảm bảo yếu tố phong thủy và sự tôn nghiêm.
- Phòng bếp và ăn: Thiết kế mở, kết nối với sảnh phụ bên hông nhà để lấy ánh sáng và thoát mùi tốt.
- 4 Phòng ngủ: Được bố trí khéo léo dọc theo chiều dài ngôi nhà. Trong đó, các phòng ngủ được thiết kế cửa sổ lớn để đón gió tự nhiên.
- Khu vực vệ sinh & giặt phơi: Được đặt phía cuối nhà, đảm bảo sự sạch sẽ và kín đáo.
3.Phối cảnh ngoại thất bản vẽ nhà cấp 4 mái nhật 4 phòng ngủ
Ngoại thất của mẫu bản vẽ nhà cấp 4 mái nhật 4 phòng ngủ này sử dụng tông màu trung tính làm chủ đạo. Kết hợp với hệ mái ngói màu xanh ghi đậm tạo điểm nhấn mạnh mẽ.
Phối cảnh mặt tiền nhà cấp 4 mái nhật 4 phòng ngủ lung linh dưới ánh nắng.
Điểm nhấn kiến trúc mặt tiền
Mặt tiền được chia làm hai khối rõ rệt. Một bên là sảnh chính với hệ cột vuông vững chãi, chân cột ốp đá tối màu tạo cảm giác chắc chắn. Cửa chính sử dụng gỗ tự nhiên kết hợp các ô kính nhỏ, vừa sang trọng vừa lấy được ánh sáng cho tiền sảnh.
Cận cảnh cửa gỗ chính cao cấp thiết kế hoa văn tròn sang trọng cho ngôi nhà.
Phía bên cạnh là hệ cửa sổ lớn bằng kính cường lực khung nhôm xingfa. Việc sử dụng kính giúp không gian nội thất bên trong luôn tràn ngập ánh sáng tự nhiên. Và mở rộng tầm nhìn ra khu vườn tiểu cảnh phía trước.
Hệ cửa sổ kính khung nhôm xingfa hiện đại giúp tối ưu ánh sáng tự nhiên vào phòng.
4.Hệ thống mái Nhật và giải pháp thoát nước với bản vẽ nhà cấp 4 mái nhật 4 phòng ngủ
Hệ mái là “linh hồn” của bản vẽ này. Khác với các kiểu mái thông thường, mái Nhật trong mẫu thiết kế này. Được thi công với kỹ thuật cao, đảm bảo độ bền và tính thẩm mỹ tuyệt đối.
Bản vẽ chi tiết mặt bằng mái nhật màu xanh với vị trí đặt bồn nước 1000L.
Cấu tạo mặt bằng mái
Nhìn từ trên cao, hệ mái được chia thành nhiều khối mái nhỏ đan xen. Tạo nên nhịp điệu kiến trúc đẹp mắt. Trên mái còn được thiết kế vị trí đặt bồn nước 1000L một cách gọn gàng, không làm ảnh hưởng đến thẩm mỹ chung của ngôi nhà. Việc lựa chọn màu ngói xanh không chỉ hợp xu hướng. Mà còn mang lại cảm giác thanh bình, dịu mát.
5.Vẻ đẹp lung linh của mẫu nhà khi về đêm
Ánh sáng là yếu tố quan trọng tôn lên vẻ đẹp của bản vẽ nhà cấp 4 mái nhật 4 phòng ngủ. Khi hoàng hôn buông xuống, hệ thống đèn hắt tường và đèn downlight âm trần. Khiến ngôi nhà trở nên lộng lẫy như một khách sạn cao cấp.
Phối cảnh ban đêm nhà cấp 4 mái nhật rực rỡ dưới ánh đèn vàng ấm cúng.
Hệ thống đèn được bố trí dọc theo các cột trụ và dưới sê-nô mái. Tạo nên những khoảng sáng tối tương phản, làm nổi bật các đường chỉ phào chỉ nhẹ nhàng trên tường.
Góc nhìn ngang ngôi nhà cấp 4 mái nhật lung linh trong ánh đèn đêm huyền ảo.
6.Phân tích phối cảnh mặt hông và giải pháp không gian mở
Một bản vẽ nhà cấp 4 mái nhật 4 phòng ngủ hoàn hảo không chỉ chú trọng mặt tiền mà còn phải đảm bảo tính thẩm mỹ ở mọi góc nhìn. Mặt hông của ngôi nhà thường là nơi bố trí các cửa sổ phụ và sảnh phụ để tăng cường lưu thông không khí.
Phối cảnh mặt hông ngôi nhà với hệ thống cửa sổ bố trí đều đặn thông thoáng.
Sự kết hợp màu sắc và vật liệu
Ở góc nhìn ngang, chúng ta có thể thấy rõ sự phân tầng màu sắc tinh tế:
- Phần mái: Ngói sóng màu xanh dương đậm, biểu tượng của sự bình yên và bền vững.
- Phần tường: Sử dụng sơn màu kem nhạt kết hợp với các đường kẻ chỉ âm tường chạy ngang. Giúp xóa bỏ sự đơn điệu của những mảng tường lớn.
- Phần chân tường: Được ốp đá rối hoặc gạch thẻ tối màu. Đây là giải pháp kỹ thuật thông minh. Giúp bảo vệ tường khỏi rêu mốc và bùn đất bắn vào mùa mưa, đồng thời tạo cảm giác chân đế công trình vững chãi.
Chi tiết sảnh phụ và bậc tam cấp được ốp đá tự nhiên sang trọng bền đẹp.
Sảnh phụ – Điểm chạm kết nối
Sảnh phụ trong bản vẽ nhà cấp 4 mái nhật 4 phòng ngủ đóng vai trò cực kỳ quan trọng. Nó không chỉ là lối đi tắt vào khu vực bếp để người nội trợ không phải xách đồ ăn đi qua phòng khách, mà còn là nơi đón gió chính cho toàn bộ không gian ăn uống giữa nhà. Hệ cột ở sảnh phụ được thiết kế đồng nhất với sảnh chính, tạo nên sự thống nhất trong ngôn ngữ kiến trúc.
7.Yếu tố kỹ thuật và kết cấu trong bản vẽ nhà cấp 4 mái nhật
Để hiện thực hóa một bản vẽ đẹp từ trên giấy ra thực tế, các gia chủ cần đặc biệt lưu ý đến các thông số kỹ thuật cốt lõi.
Kết cấu móng
Với đặc thù nhà cấp 4 dàn trải trên một diện tích rộng (khoảng 128m2 trong mẫu này). Việc lựa chọn móng phụ thuộc rất nhiều vào nền đất:
- Đất cứng: Có thể sử dụng móng băng để tiết kiệm chi phí nhưng vẫn đảm bảo chịu lực tốt.
- Đất yếu (gần sông, ao): Cần cân nhắc móng cọc hoặc móng bè. Để tránh tình trạng sụt lún không đều giữa các khối nhà.
Độ dốc mái Nhật tiêu chuẩn
Trong bản vẽ nhà cấp 4 mái nhật 4 phòng ngủ, độ dốc mái thường dao động từ 25% đến 35%. Đây là độ dốc vừa đủ để nước mưa thoát nhanh nhưng không tạo ra độ cao quá lớn như mái Thái. Giúp giữ được vẻ “lùn” đặc trưng của kiến trúc Nhật Bản. Hệ khung kèo thép nhẹ đang là xu hướng được khuyên dùng thay cho việc đổ bê tông mái dốc. Nhờ ưu điểm giảm tải trọng lên hệ thống cột và móng.
8.Bố trí nội thất cho bản vẽ nhà cấp 4 mái nhật 4 phòng ngủ
Với 4 phòng ngủ, việc phân chia diện tích nội thất cần sự tính toán để không làm hẹp không gian chung về mẫu nhà cấp 4 đẹp .
- Phòng ngủ master: Thường dành cho chủ gia đình, diện tích khoảng 15-18m2, có nhà vệ sinh khép kín.
- 3 Phòng ngủ nhỏ: Diện tích từ 10-12m2, bố trí cửa sổ hướng ra sân vườn. Hoặc khu vực tiểu cảnh để đảm bảo ánh sáng.
- Không gian phòng ăn: Đây là “trái tim” của ngôi nhà cấp 4. Với thiết kế liên thông phòng khách, bàn ăn 8 ghế được đặt ở vị trí trung tâm. Tạo không gian sinh hoạt chung rộng lớn cho cả đại gia đình.
9.Những lưu ý phong thủy khi thiết kế nhà cấp 4 mái nhật 4 phòng ngủ
Phong thủy không chỉ là tâm linh mà còn là sự sắp xếp khoa học về luồng khí và ánh sáng:
- Hướng phòng thờ: Phải đặt ở cung tốt, hướng ra phía mặt tiền của ngôi nhà để đón tài lộc.
- Tránh cửa đối cửa: Với 4 phòng ngủ, rất dễ xảy ra tình trạng các cửa phòng đối diện nhau hoặc cửa phòng ngủ đối diện cửa nhà vệ sinh. Đây là điều đại kỵ cần xử lý ngay từ khâu bản vẽ mặt bằng.
- Sân vườn và tiểu cảnh: Kiến trúc mái Nhật luôn đi đôi với cây xanh. Việc bố trí các khu vực “tiểu cảnh” quanh nhà như trong bản vẽ không chỉ làm đẹp mà còn giúp lọc không khí. Mang lại năng lượng tích cực cho gia chủ.
Mẫu bản vẽ nhà cấp 4 mái nhật 4 phòng ngủ là một minh chứng cho sự kết hợp hoàn hảo giữa thẩm mỹ phương Đông và lối sống tiện nghi hiện đại. Với chi phí đầu tư vừa phải, không gian sống trên một mặt sàn thông thoáng và vẻ đẹp sang trọng. Đây chắc chắn sẽ là tổ ấm lý tưởng cho những gia đình đa thế hệ.
Hy vọng bài viết này đã cung cấp cho bạn. Cái nhìn toàn diện từ phối cảnh, mặt bằng cho đến kỹ thuật và chi phí. Một ngôi nhà đẹp bắt đầu từ một bản vẽ chuẩn xác và tâm huyết.
Liên hệ với chúng tôi để tư vấn miễn phí
Công ty TNHH cơ khí Xây Dựng Tiến Thành
- Hotline: 0901.625.191
- Email: xaydungtienthanh01@gmail.com
- Website: xaydungtienthanh.vn
- Địa chỉ :72 Đường số 11-KDC Cityland Park Hills -P.Gò Vấp-TP.HCM









